24小时服务热线:19103801095
NEWS CENTER
Recommend case
contact us

本指导原则旨在指导注册申请人对呼吸机注册申报资料的准备及撰写,同时也为技术审评部门审评注册申报资料提供参考。
本指导原则是对呼吸机的一般要求,申请人应依据产品的具体特性确定其中内容是否适用,若不适用,需具体阐述理由及相应的科学依据,并依据产品的具体特性对注册申报资料的内容进行充实和细化。
本指导原则是供申请人和审查人员使用的指导文件,不涉及注册审批等行政事项,亦不作为法规强制执行,如有能够满足法规要求的其他方法,也可以采用,但应提供详细的研究资料和验证资料。应在遵循相关法规的前提下使用本指导原则。
本指导原则是在现行法规、标准体系及当前认知水平下制定的,随着法规、标准体系的不断完善和科学技术的不断发展,本指导原则相关内容也将适时进行调整。
一、适用范围
本指导原则适用于呼吸机,按照《医疗器械分类目录》,管理类别为第三类,分类编码为08-01-01治疗呼吸机、08-01-02急救和转运呼吸机、08-01-03高频呼吸机、08-01-04家用呼吸机(生命支持)。
二、注册审查要点
(一)监管信息
1.产品名称
按照《医疗器械分类目录》《医疗器械通用名称命名规则》,呼吸机的产品名称一般以“呼吸机”为核心词,可按照产品分类、预期用途、使用场景等增加特征词,例如:无创呼吸机、新生儿呼吸机、急救和转运呼吸机。
2.注册单元划分原则
2.1不同品种的呼吸机划分为不同的注册单元。例如治疗呼吸机、依赖呼吸机患者使用的家用呼吸机、急救和转运用呼吸机等划分为不同的注册单元。
2.2技术原理不同的呼吸机划分为不同的注册单元。例如,气动电控呼吸机与电动电控呼吸机划分为不同的注册单元,高频喷射呼吸机与高频振荡呼吸机划分为不同的注册单元。
2.3配合呼吸机使用的通用性无源耗材与呼吸机划分为不同的注册单元,例如呼吸管路、气管插管、面罩等。
2.4湿化器、空气压缩机等有源医疗器械或设备原则上与呼吸机划分为不同注册单元。
2.5技术原理相同、产品设计结构的不同对安全有效性有影响的呼吸机原则上划分为不同的注册单元,例如气路设计差别较大的呼吸机。
(二)综述资料
1.产品描述
1.1器械及操作原理描述
描述产品的工作原理、结构组成(含配合呼吸机使用的附件)、主要功能及其组成部件(关键组件和软件)的功能,以及区别于其他同类产品的特征等内容。
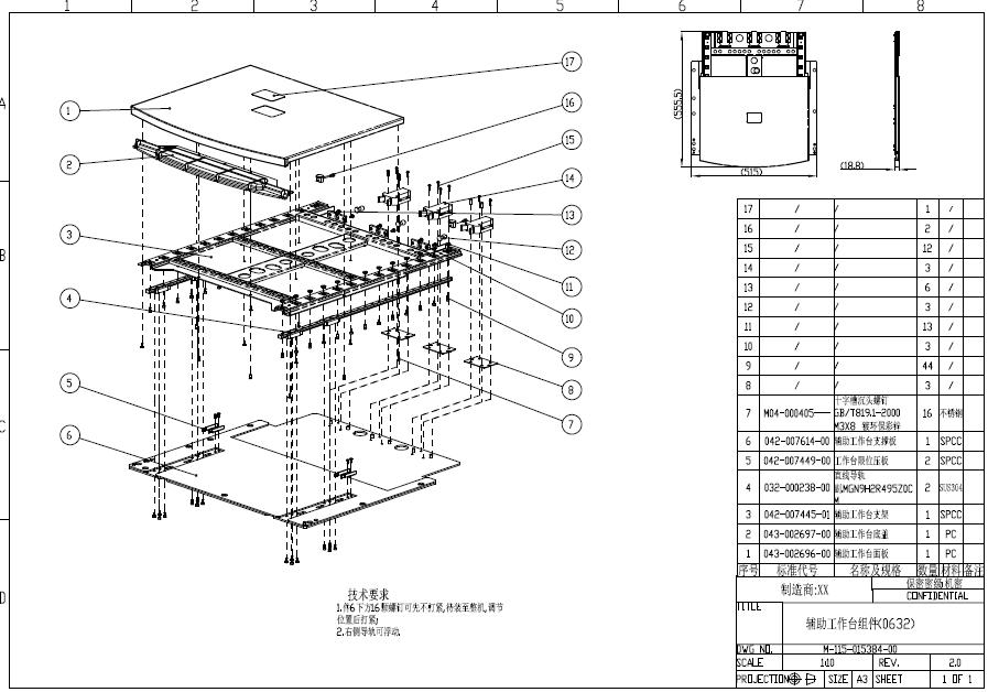
提供产品工程图和关键组件工程图。如果是变更注册,提供变更关键组件工程图。工程图包含三维爆炸图、二维投影图,应标注出长宽高尺寸。
结合图示描述产品的物理尺寸、重量、外观、型号和与产品配合使用的附件等信息。
提供产品的气路原理图、硬件结构图。结合气路原理图和硬件结构图对主要功能的工作原理和技术实现进行描述。
产品的主要功能(如适用)包括但不限于:潮气量输送、吸气压力控制、氧浓度控制、呼气末正压(PEEP)和最大限制压力的控制、潮气量监测、气道压力监测、氧浓度监测、报警等。
提供产品关键部件的信息,其应包括型号、规格等内容,用来唯一识别这些关键部件。关键部件包括电源模块、各种传感器等。
提供电池的类型、容量和电池短路和超温的保护原理,以及认证信息等信息。
说明产品的各项呼吸模式,给出相应的定义,提供相应的呼吸波形,包括窒息通气模式(备用通气)。说明与各通气模式相关的控制参数及其含义。
说明产品的软件功能,描述各功能的原理和算法、临床应用场景、设计依据及理论基础。
产品组成示例:
本产品由主机、台车、支撑臂和附件组成。附件包括氧浓度传感器、二氧化碳传感器、脉搏氧饱和度传感器。
附件以列表形式给出,列明附件的型号、规格等信息。
工程爆炸图示例:

图1工程爆炸图示例
1.2型号规格
对于存在多种型号规格的产品,按照上述产品描述的要求,明确各型号规格的区别。采用对比表及带有说明性文字的图片、图表,对所有拟申报型号规格的结构组成(或配置)、功能、产品特征和运行模式、性能指标等方面进行描述。
例如,某呼吸机产品有V01和V02两个型号,其型号规格说明举例如下:
表1型号规格差异
|
序号 |
功能项目 |
呼吸机 |
||
|
V01 |
V02 |
|||
|
1 |
通气模式 |
容量控制/辅助通气 |
● |
● |
|
压力控制/辅助通气 |
● |
● |
||
|
同步间歇指令通气 |
● |
● |
||
|
持续气道正压/压力支持通气 |
● |
○ |
||
|
压力调节容量控制通气 |
● |
○ |
||
|
…… |
…… |
…… |
||
|
2 |
监测 |
潮气量 |
● |
● |
|
分钟通气量 |
● |
● |
||
|
气道压力 |
● |
● |
||
|
呼气末正压 |
● |
● |
||
|
氧浓度 |
● |
● |
||
|
呼吸频率 |
● |
● |
||
|
阻力 |
● |
○ |
||
|
顺应性 |
○ |
○ |
||
|
…… |
…… |
…… |
||
|
3 |
特殊功能 |
增氧 |
● |
● |
|
雾化 |
● |
● |
||
|
吸气保持 |
● |
○ |
||
|
吸痰 |
○ |
○ |
||
|
内源性PEEP显示 |
○ |
× |
||
|
…… |
…… |
…… |
||
|
4 |
结构组成 |
台车 |
● |
● |
|
二氧化碳模块 |
○ |
○ |
||
|
…… |
…… |
…… |
||
|
5 |
性能指标 |
|||
|
…… |
…… |
…… |
||
|
注:本表中●表示标配,○表示选配,×表示不配置。 |
||||
2.适用范围
明确呼吸机适用的医疗阶段、使用环境、目标用户,以及操作或使用该产品应当具备的技能/知识/培训。
例如,08-01-01的呼吸机预期在专业医疗机构内的重症治疗环境中使用或在专业医疗机构内进行患者转运,预期由培训合格获得授权的医务人员进行操作,应用于依赖机械通气的患者,属于生命支持设备。同时应明确设备适用的环境条件(温度、湿度、海拔等)、目标患者人群的信息(如成人、儿童、婴幼儿或新生儿)。如适用,还应明确说明适用患者的体重情况或者通气量情况(如体重30 kg以下的儿童)。
急救和转运呼吸机一般用于院外急救和转运环境。家用呼吸机可用于家庭护理环境。
家用呼吸机一般可由无经验的操作者进行操作,应明确操作或使用该产品应当具备的技能/知识/培训。
可用于磁共振环境的呼吸机,明确磁共振环境条件。不可用于磁共振环境无需在注册证中体现。
适用范围示例如下:
本产品预期在专业医疗机构内部的重症监护环境,或在专业医疗机构内部进行转运时使用,对成人、儿童及婴幼儿患者进行通气辅助及呼吸支持。本产品应由培训合格获得授权的医务人员进行操作。
3.禁忌证
如适用,应当明确说明该呼吸机不适宜应用的某些疾病、情况或特定的人群。
4.其他需说明的内容
4.1明确预期与申报产品联合使用的其他医疗器械、非医疗器械产品的详细信息,如湿化器、雾化器、呼吸管路、传感器、空气压缩机等,说明其制造商、型号规格、关键技术参数等。提供图示说明系统各组合设备间存在的物理、电气等连接方式。
4.2已取得注册证的部件,提供注册证信息。
(三)非临床资料
1.产品风险管理资料
按照GB/T 42062《医疗器械风险管理对医疗器械的应用》标准的要求,针对呼吸机的安全特征,从能量危害、生物学和化学危害、操作危害、信息危害等方面,对产品风险进行全面分析并阐述相应的控制措施,风险管理报告及相关资料的要求可参考附件1。
2.产品技术要求及检测报告
按照《医疗器械产品技术要求编写指导原则》编制产品技术要求。
产品涉及的相关标准见附件2。产品技术要求及相关资料的要求可参考附件3。
3.研究资料
3.1性能研究
针对产品的功能性能、安全要求(富氧防火、单一故障安全等)等,提供相关研究资料。
3.1.1说明产品的各项技术参数,包括控制参数、监测参数、报警参数等参数的调节或监测(包括显示)范围及其误差要求。 提供各项技术参数的确定依据、所采用的标准或方法、采用的原因及理论基础。
3.1.2对产品的特殊功能和其他功能进行验证,提交验证报告。针对各功能,分别明确相关评价指标及其选取理由,说明评价指标的可接受准则及制定依据。验证报告应包括验证方法、验证结果及结论。
按照GB 9706.212第201.12.1.104条款进行氧浓度增加的响应时间验证,提交相关验证报告。
如适用,提供漏气补偿、顺应性补偿和插管补偿的设计原理和验证资料。
具有高流量氧疗功能的产品可参考《高流量呼吸治疗设备注册审查指导原则》提交相关研究资料。
3.1.3若申报产品的压力、潮气量等控制参数的可设置范围显著超出了临床需求范围,提交相应人因设计研究资料。
3.1.4对于可通过使用患者生理参数调节通气治疗设置的呼吸机,提供生理闭环控制的研究资料,包括但不限于:对生理闭环控制的应用场景、可进行的操作等情况进行说明,描述功能的原理和算法、设计依据及理论基础。重点关注生理变量、被控变量等风险并阐述相关控制措施。在说明书中明确生理闭环控制的使用场景及限制,并提供相关警示信息。还应提供生理闭环控制的验证资料。
3.1.5若产品可用于磁共振环境,描述具体的磁共振环境使用条件,如磁共振设备类型、磁场强度限制、产品放置位置、距离、产品通气模式及配置要求等。对产品在磁共振环境中能否正常运行(包括控制、监测和报警)、产品对磁共振设备的影响(如成像质量等)开展实际测试,提供相应验证报告。依据上述研究,在产品技术要求附录中明确产品的磁共振使用条件。
3.1.6对于适用的国家标准、行业标准中的不适用条款,说明不适用的理由。
3.1.7产品可与湿化器、空气压缩机等其他产品或设备联合使用的,提供联合使用的研究资料。
3.1.8参照YY/T0882的要求,提供产品与氧气兼容性的研究报告,提交相应测试计划与报告。
3.2电气系统安全性研究
提供电气安全、机械和环境保护以及电磁兼容性的研究资料,说明适用的标准以及开展的研究。
3.3软件研究
呼吸机软件一般用来控制呼吸机的运行,包括各项参数的控制、监测和报警,安全性级别归为严重。参照《医疗器械软件注册审查指导原则(2022年修订版)》《医疗器械网络安全注册审查指导原则(2022年修订版)》的要求,提供相应研究资料。
3.4生物学特性研究
说明产品预期与气体接触的部位,提交与气体接触的材料清单;说明使用的材料的基本信息,如材料的组成、成份信息、材料的物理和化学属性等,并应保证使用的材料的安全性。建议参照YY/T 1778.1等系列标准,提交产品气体通路生物相容性研究资料。
若呼吸机含有预期与人体接触的部件或附件,根据产品与人体接触部位、接触方式及接触时间,按GB/T 16886.1等系列标准的规定要求进行评价。
3.5清洁、消毒、灭菌研究
呼吸机及其附件和部件根据其使用方式的不同,应有适当的消毒水平,但在某些情况下需要对呼吸机及其附件和部件灭菌。例如呼吸机应用于某些传染性强的疾病(如结核病等)患者之后需要灭菌。
正常状态或单一故障状态下,可能和体液或呼出气体接触的可重复使用的呼吸机气路及附件至少应使用高水平消毒。这类气路及附件应设计成可拆卸的,以便于进行清洗、消毒或灭菌。
呼吸机及其附件的外表面应设计成支持表面清洁和消毒的,以期将下一个患者交叉感染的风险降低到合理可接受的水平。
提供清洗、消毒与灭菌的工艺(方法和参数),并有推荐使用的试剂,说明所推荐方法确定的依据,提供清洁、消毒、灭菌效果及次数的验证报告。
4.稳定性研究
4.1按照《有源医疗器械使用期限注册技术审查指导原则》提交产品的使用期限研究资料。
4.2若有以无菌方式交付的部件或附件,提供货架有效期和包装研究资料。
4.3描述产品正确运输的环境条件,提供在宣称的运输条件下,保持包装完整性的依据,提供验证总结报告。
4.4参考GB∕T 14710提供产品环境试验相关资料,提供环境试验的测试方案,说明测试条件、(中间、最后)测试项目及其制定依据,提交相应环境试验报告。全面考虑产品的各种预期工作环境,如极端天气下的室外环境,交通运输环境等。
(四)临床评价资料
呼吸机一般可采取同品种对比的路径开展临床评价。申请人应当依照《医疗器械临床评价等同性论证技术指导原则》《呼吸机同品种临床评价注册审查指导原则》的要求,对申报产品开展临床评价,进行申报产品与同品种产品在各通气模式下的波形对比测试。提交符合《医疗器械注册申报临床评价报告技术指导原则》的临床评价报告。
若申报产品与同品种产品在各通气模式下的波形差异较大,或申报产品具有其他特殊功能(如生理闭环控制等),原则上应考虑提交临床试验数据。
(五)产品说明书和标签样稿
提供完整的说明书,内容包含申报范围内所有型号规格的产品,以及所有的组成部分。
说明书除了需要符合《医疗器械说明书和标签管理规定》及相关标准要求,还要包含以下内容:
1.产品型号、规格、功能及结构型式。
2.产品气路原理图。
3.推荐的呼吸系统附件。
4.详细的警告、注意事项等内容,包括但不限于:
4.1呼吸机使用资质的要求,如只能由经过培训合格的、获得授权的医务人员操作。
4.2产品能否在磁共振(MRI)环境中使用,及相关使用条件、使用限制的说明及警示。
4.3电磁兼容方面相关的警告及措施,如呼吸机可能受到便携式和移动通讯设备影响的警告。
4.4不应使用抗静电或导电的软管或导管的意义的陈述。
4.5呼吸机不应被覆盖或不应放置在影响呼吸机运行和性能的位置的警告。
4.6应明确与呼吸机兼容的设备及附件(湿化器、热湿交换器、呼吸管路、细菌过滤器、雾化器等);或给出兼容设备的技术规格,如呼吸管路的阻力、顺应性等。
4.7应给出呼吸机的预期使用、运输、储存条件。
4.8应给出清洁、消毒、灭菌的说明。
4.9对产品使用期限、货架有效期(如适用)进行说明。
4.10对于一次性使用的附件或部件,应有不可重复使用的警告。
4.11说明书中应明确如何进行呼吸机的维护。
(六)质量管理体系文件
按照《关于公布医疗器械注册申报资料要求和批准证明文件格式的公告》的要求提交质量管理体系文件。
三、参考文献
[1]中华人民共和国国务院.医疗器械监督管理条例:中华人民共和国国务院令第739号[Z].
[2]国家市场监督管理总局.医疗器械注册与备案管理办法:国家市场监督管理总局令第47号[Z].
[3]国家药品监督管理局.关于公布医疗器械注册申报资料要求和批准证明文件格式的公告:国家药品监督管理局公告2021年第121号[Z].
[4]国家食品药品监督管理总局.医疗器械说明书和标签管理规定:国家食品药品监督管理总局令第6号[Z].
[5]国家食品药品监督管理总局.医疗器械通用名称命名规则:国家食品药品监督管理总局令第19号[Z].
[6]国家食品药品监督管理总局.医疗器械分类目录:国家食品药品监督管理总局公告2017年第104号[Z].
[7]国家食品药品监督管理总局.医疗器械注册单元划分指导原则:国家食品药品监督管理总局公告2017年第187号[Z].
[8]国家药品监督管理局.医疗器械产品技术要求编写指导原则:国家药品监督管理局通告2022年第8号[Z].
[9]国家药品监督管理局医疗器械技术审评中心.医疗器械软件注册审查指导原则(2022年修订版):国家药品监督管理局医疗器械技术审评中心通告2022年第9号[Z].
[10]国家药品监督管理局医疗器械技术审评中心.医疗器械网络安全注册审查指导原则(2022年修订版):国家药品监督管理局医疗器械技术审评中心通告2022年第7号[Z].
[11]国家药品监督管理局.有源医疗器械使用期限注册技术审查指导原则:国家药品监督管理局通告2019年第23号[Z].
[12]国家药品监督管理局.国家药监局关于发布医疗器械临床评价技术指导原则等5项技术指导原则的通告:国家药品监督管理局通告2021年第73号[Z].
[13]GB/T 14710-2009,医用电气设备环境要求及试验方法[S].
[14]GB/T 16886.1-2022,医疗器械生物学评价 第1部分:风险管理过程中的评价与试验[S].
[15]GB/T 42062-2022,医疗器械 风险管理对医疗器械的应用[S].
[16]YY/T 1437-2023,医疗器械GB/T 42062应用指南[S].
[17]YY/T 1778.1-2021,医疗应用中呼吸气体通路生物相容性评价 第1部分:风险管理过程中的评价与试验[S].
[18]GB 9706.1-2020,医用电气设备 第1部分:基本安全和基本性能的通用要求[S].
[19]GB 9706.212-2020,医用电气设备 第2-12部分:重症护理呼吸机的基本安全和基本性能专用要求[S].
[20]GB 9706.255-2022,医用电气设备 第2-55部分:呼吸气体监护仪的基本安全和基本性能专用要求[S].
[21]GB 9706.290-2022医用电气设备 第2-90部分:高流量呼吸治疗设备的基本安全和基本性能专用要求[S].
[22]YY 9706.284-2023,医用电气设备 第2-84部分:紧急医疗服务环境用呼吸机的基本安全和基本性能专用要求[S].
[23]YY 9706.272-2021,医用电气设备 第2-72部分:依赖呼吸机患者使用的家用呼吸机的基本安全和基本性能专用要求[S].
[24]YY 9706.274-2022,医用电气设备 第2-74部分:呼吸湿化设备的基本安全和基本性能专用要求[S].
[25]YY 9706.102-2021,医用电气设备 第1-2部分:安全通用要求 并列标准:电磁兼容 要求和试验[S].
[26]YY 9706.108-2021,医用电气设备 第1-8部分:基本安全和基本性能的通用要求 并列标准:通用要求,医用电气设备和医用电气系统中报警系统的测试和指南[S].
[27]YY 9706.112-2021,医用电气设备 第1-12部分:基本安全和基本性能的通用要求 并列标准:预期在紧急医疗服务环境中使用的医用电气设备和医用电气系统的要求[S].
[28]YY 9706.111-2021,医用电气设备 第1-11部分:基本安全和基本性能的通用要求 并列标准:在家庭护理环境中使用的医用电气设备和医用电气系统的要求[S].
[29]YY 0042-2018,高频喷射呼吸机[S].
[30]YY/T 9706.110-2021,医用电气设备 第1-10部分:基本安全和基本性能的通用要求 并列标准:生理闭环控制器开发要求[S].
[31]YY/T 0799-2010,医用气体低压软管组件[S].
附件1
呼吸机风险管理资料要求
一、风险管理报告的内容
(一)预期用途和与安全性有关特征的判定
申请人应根据产品的预期用途,判定与产品安全性有关的特征。
申请人应按照YY/T1437《医疗器械GB/T 42062应用指南》提示的问题,对照产品的实际情况作针对性的简明描述。产品如存在YY/T 1437提示以外的可能影响安全性的特征的情况,也应做出说明。可能影响安全性的特征应形成文档,其中还应包含对产品基本性能的阐述。
呼吸机的基本性能如下:
1.对于分类编码为08-01-01的呼吸机,包括但不限于潮气量、吸气压力以及在操作者设置的报警限值内患者连接口处的通气输送或报警状态产生,如氧浓度报警状态、气道压力、呼气量、电源故障、内部电源即将耗尽、气源故障、气流的错误交叉等。
2.对于分类编码为08-01-02的呼吸机,包括但不限于潮气量、吸气压力以及在操作者设置的报警限值内患者连接口处的通气输送或报警状态产生,如呼气量(如配备)、气源故障、高气道压力、内部电源即将耗尽、吸入氧气浓度(如配备)。
3.对于分类编码为08-01-03的呼吸机,包括但不限于平均气道压力、氧浓度以及在操作者设置的报警限值内,患者连接口或喷射系统的远端出口处的通气输送或报警状态产生,如断开、气源故障、HFV通气量(如提供)、内部电源即将耗尽、平均气道压力、阻塞、氧浓度、压力振幅(如提供)、振荡频率等。
4.对于分类编码为08-01-04的呼吸机,包括但不限于:在操作者设置的报警限值内,在患者连接口提供通气,或生成报警状态,如气道压力报警、持续正压报警、传输通气量、呼气末二氧化碳报警(如果提供)、高气道压力报警、通气不足报警、内部电源接近耗尽报警、高泄漏报警、低呼气潮气量报警(如果提供)、阻塞报警、氧浓度报警(如果提供)等。
申请人应根据产品的实际功能、用途等全面充分分析产品的基本性能。
(二)危险的判定
申请人应在已识别的影响安全性的特征的基础上,系统地判定产品在正常和故障两种条件下的可预见的危险。并对危险的成因及后果进行分析,即说明危险、可预见事件序列、危险处境和可能发生的损害之间的关系。形成一份产品可预见的危险及危险分析清单。
危险的判定至少应包含能量危险、生物和化学危险、操作危险、信息危险等方面的危险分析,并应按照下表中的危险二级分类来展开分析。
下表为呼吸机常见危险举例,供参考,申请人应根据申报产品实际情况进行完善。
表2呼吸机危险示例
|
危险分类 |
危险二级分类 |
危险示例 |
|
能量危险 |
电磁能 |
网电源 |
|
人体接触带电部件,或因湿化罐内液体流出导致原本绝缘部分带电,接触后导致触电危害 |
||
|
漏电流(外壳漏电流、对地漏电流、患者漏电流) |
||
|
辐射能 |
非电离辐射 |
|
|
热能 |
高温:高温的气体被送入患者气道 |
|
|
在患者连接口所输送气体的温度,在120 s的时间内,超过70℃或相当于43℃(100%相对湿度)的等效能量(比焓197kJ/m3的干燥空气) |
||
|
温度、湿度超过预定范围 |
||
|
机械能 |
倾倒:呼吸机及台车倾倒 |
|
|
悬挂物:管路支撑臂、湿化器悬臂 |
||
|
振动 |
||
|
噪声:呼吸机、呼吸机和联合使用设备(空压机等)运行时的噪音 |
||
|
生物学和化学危险 |
生物学危险 |
细菌:重复用管路等附件未经严格消毒感染细菌的危害 |
|
设备没有防反流设计或内部消毒方案导致交叉感染 |
||
|
再次或交叉感染:重复用管路等附件未经严格消毒交叉感染的危害 |
||
|
化学危险 |
患者气道和组织暴露于外来材料中:加工残留物、污染物、添加剂或加工助剂、清洗与消毒试剂残留物、降解或析出物、医用气体等 |
|
|
生物相容性危险 |
与患者接触材料(面罩等)的生物相容性方面的危害(毒性、致敏等) |
|
|
操作危险 |
功能 |
报警异常 |
|
漏气 |
||
|
停机、死机 |
||
|
潮气量输出异常 |
||
|
阀门故障 |
||
|
板卡异常 |
||
|
氧电池异常 |
||
|
空气压缩机故障 |
||
|
传感器故障(包括流量传感器、压力传感器和温度传感器) |
||
|
氧浓度异常 |
||
|
操作界面异常(黑屏、按键失灵等) |
||
|
气道压力异常 |
||
|
湿化器故障 |
||
|
电源和电池故障 |
||
|
监测值与设置值偏差 |
||
|
气源输入故障 |
||
|
网络通信故障 |
||
|
阻塞 |
||
|
压力振幅异常 |
||
|
流量异常 |
||
|
意外调节 |
||
|
持续正压异常 |
||
|
涡轮故障 |
||
|
功能连接异常 |
||
|
使用风险 |
呼吸机模式或参数设置不当 |
|
|
未及时校准传感器(流量传感器、氧传感器等) |
||
|
未及时更换易损易耗部件(氧电池、管路) |
||
|
未及时清理积水 |
||
|
清洗消毒不及时 |
||
|
设备运行会在使用者周围形成富氧环境,在明火及易燃物周围使用导致起火 |
||
|
设备关闭后未及时切断外部氧气供应,设备周边形成富氧环境,增加起火风险 |
||
|
灰尘积累过多,未及时清洗 |
||
|
信息危险 |
标记和说明 |
使用说明书不完整 |
|
性能指标描述不充分 |
||
|
预期用途规定不充分 |
||
|
使用限制条件说明不充分 |
||
|
操作说明 |
与呼吸机一起使用的附件规定不充分 |
|
|
使用前检查规定不充分 |
||
|
操作指示过于复杂 |
||
|
警告 |
一次性附件可能被错误地再次使用的危害 |
|
|
使用抗静电或导电的呼吸管路的危害 |
||
|
将呼吸机覆盖或将呼吸机放置于空气流通较差的位置的危害 |
||
|
雾化时使用呼气支路细菌过滤器导致堵塞的危害 |
||
|
其他关于安全使用呼吸机的警告 |
||
|
服务和维护规格 |
服务和维护周期定义不当 |
|
|
重复使用造成性能下降,对治疗效果产生影响 |
||
|
说明书未描述再次使用前的清洁、消毒、检查程序 |
||
|
网络安全危险 |
保密性 |
信息被未授权设备获得 |
|
完整性 |
信息的创建、传输、存储、显示未以授权方式进行更改 |
|
|
可得性 |
信息不可根据授权实体要求进行访问和使用 |
|
|
真实性 |
信息不符合声称的规格 |
|
|
抗抵赖性 |
无法证明事件的发生 |
|
|
可核查性 |
呼吸机的网络连接不可被追溯 |
|
|
可靠性 |
呼吸机的网络连接与预期结果不一致 |
(三)风险估计和风险评价
应识别可能造成危险情况的合理可预见的事件序列或组合,列明造成的危险情况。并对每个已判定的危险情况,依据风险管理计划中制定的风险可接受性准则进行风险评价,决定是否需要降低风险。
用于风险估计的资料或数据,可以通过以下途径获得:
1.已发布的国内、国际标准;
2.科学技术资料,例如各种期刊、专著;
3.已在使用中的呼吸机的临床资料,例如已公布的不良事件报告、召回信息等,典型的如美国食品药品管理局官方网站中的MAUDE数据库;
4.临床数据;
5.调研结果;
6.专家意见。
表3呼吸机危险、可预见的事件序列、危险情况和伤害之间的关系示例
|
危险 |
可预见的事件序列 |
危险情况 |
伤害 |
|
电磁能 (网电源) |
(1)使用了导电的呼吸管路和气管插管 (2)通气时使用高频电刀 |
发生火灾 |
严重烧伤 死亡 |
|
电磁能 (静电释放ESD) |
(1)带静电的操作者触摸呼吸机 (2)静电导致呼吸机停止工作和报警失效 (3)呼吸机停止向患者送气 |
不知道呼吸机没有向患者输送气体 |
缺氧 脑损伤 死亡 |
|
生物学的 (微生物污染) |
(1)提供的重复性使用呼吸管理的清洗消毒说明不适当 (2)通气过程中使用了受污染的管路 |
通气过程中细菌进入患者气道 |
细菌感染 死亡 |
|
功能 (没有输出) |
(1)电池电量未达到声称的工作时间 (2)院内转运之前,没有检查电池电量 |
院内转运过程中,呼吸机突然停止通气 |
缺氧 脑损伤 死亡 |
|
功能 (气道压力过高) |
(1)呼吸机控制软件失控 (2)临床检视不够及时 |
过高的气道压被施加到患者肺内 |
压力伤 肺损伤 |
|
功能 (氧浓度过低) |
(1)气源接口不能防止误连接 (2)错误地将空气接入呼吸机氧气气源入口 |
比设置值低的氧浓度输入患者 |
血氧饱和度下降 延误治疗 缺氧 脑损伤 死亡 |
(四)风险控制
申请人应对经风险评价后不可接受的、或考虑可进一步采取措施降低的风险制定适当的风险控制措施(一个或多个),把风险降低到可接受的水平。
申请人应按照以下顺序,依次使用一种或多种方法:
1.用设计方法取得固有安全性,例如消除危险、降低伤害发生的概率、降低伤害的严重度;
2.在医疗器械本身或在制造过程中提供防护措施,例如提供安全阀、提供视觉或听觉报警信号;
3.提供安全性信息,例如提供警告标识、限制呼吸机的使用或限制使用环境、提供警告信息(告知某些不当使用、危害或其他有助于降低风险的信息)、提供防护设备(例如细菌过滤器)、提供操作者培训(以改进他们的表现或提高其检出错误的能力)、规定必需的维护时间间隔、规定最大产品服务寿命等。
在制定降低风险的控制措施方案时,应充分考虑产品国家标准、行业标准中有关降低风险的措施。
应确保降低风险的控制措施在研制初期得到有效的输入,对每项风险控制措施实施予以验证,并应对措施的有效性实施验证。
(五)综合剩余风险的可接受性评价
申请人应对采取控制措施后的剩余风险进行估计和评价,提供采取风险控制措施前、后的风险分布图。应对综合剩余风险是否可接受给出结论性意见。
附件2
适用的标准
下表列出了呼吸机适用的常见标准。如有标准修订或新标准实施,应按照当下现行有效的标准执行。申请人根据产品的实际情况确定适用的标准。
表4 适用标准列表
|
GB 9706.1 |
医用电气设备第1部分:基本安全和基本性能的通用要求 |
|
GB 9706.212 |
医用电气设备第2-12部分:重症护理呼吸机的基本安全和基本性能专用要求 |
|
GB 9706.255 |
医用电气设备第2-55部分:呼吸气体监护仪的基本安全和基本性能专用要求 |
|
GB 9706.290 |
医用电气设备第2-90部分:高流量呼吸治疗设备的基本安全和基本性能专用要求 |
|
YY 9706.284 |
医用电气设备第2-84部分:紧急医疗服务环境用呼吸机的基本安全和基本性能专用要求 |
|
YY 9706.272 |
医用电气设备第2-72部分:依赖呼吸机患者使用的家用呼吸机的基本安全和基本性能专用要求 |
|
YY 9706.274 |
医用电气设备第2-74部分:呼吸湿化设备的基本安全和基本性能专用要求;YY 9706.102医用电气设备 第1-2部分:安全通用要求 并列标准:电磁兼容 要求和试验 |
|
YY 9706.108 |
医用电气设备第1-8部分:基本安全和基本性能的通用要求 并列标准:通用要求,医用电气设备和医用电气系统中报警系统的测试和指南 |
|
YY 9706.111 |
医用电气设备第1-11部分:基本安全和基本性能的通用要求 并列标准:在家庭护理环境中使用的医用电气设备和医用电气系统的要求 |
|
YY 9706.112 |
医用电气设备第1-12部分:基本安全和基本性能的通用要求 并列标准:预期在紧急医疗服务环境中使用的医用电气设备和医用电气系统的要求 |
|
YY 0042 |
高频喷射呼吸机 |
|
YY/T 9706.110 |
医用电气设备第1-10部分:基本安全和基本性能的通用要求 并列标准:生理闭环控制器开发要求 |
|
YY/T 0799 |
医用气体低压软管组件 |
附件3
产品技术要求及相关资料要求
一、基本要求
产品的工作条件不列入性能指标,如是试验条件,在试验方法注明。
如适用,性能指标包括:
1.明确产品的全部临床应用的功能,明确产品的全部通气类型(有创、无创)及其对应的通气模式。
2.控制参数
潮气量、吸气压力、呼末正压、压力支持水平、最大限制压力、氧浓度、呼吸频率、吸呼比、吸气时间、吸气触发灵敏度、呼气触发灵敏度、窒息通气参数(备用通气参数)等。
控制参数性能指标应至少包括调节范围、调节步长、控制误差。不同患者人群的调节范围、调节步长、控制误差如有不同,分开表达并分开检验。原则上,全部可调节范围都应声称控制误差并得到检验。设置档位的参数,明确各档位的具体含义或对应的数值及误差。不能提供控制误差或不能明确档位数值的,在CH3.5.1研究资料中详细说明理由。
控制参数的调节范围、控制误差及最小非零值(如适用)设置应合理。
例如:
潮气量控制
调节范围:成人100 mL~2000 mL,小儿20 mL~300 mL;
调节步长:成人为10 mL;小儿为1 mL;
误差:±(10 mL +设定值的10 %)。
以百分号(%)为单位的性能指标,在表达控制误差时注明是相对误差还是绝对误差。
例如:
呼气触发灵敏度控制
调节范围:10%~85%;
调节步长:5%;
误差:±10%(绝对误差)。
3.监测参数
吸入潮气量、呼出潮气量、气道压力、呼气末正压、呼吸频率、分钟通气量、氧浓度、呼末二氧化碳浓度、阻力、顺应性、浅快呼吸指数、最大吸气负压、口腔闭合压、呼吸功、呼气时间常数等;
监测参数的性能指标应具体描述在哪个范围内能达到这样的误差水平。如某些监测参数是通过对其他监测参数计算得到的,在综述资料中给出计算方法,如适用给出计算公式。
例如:
气道压力
在0 cmH2O~120 cmH2O范围内,误差:±(2 cmH2O + 4%实际读数)。
4.其他性能指标
吸气阻力、呼气阻力、雾化器输出流量范围、呼吸系统顺应性、整机噪声水平、峰值流量、基础流量、气体温度等。
5.报警指标
国家标准、行业标准中明确的报警指标不要求在产品技术要求中明确。国家标准、行业标准中要求在说明书中明确,但没有给出具体指标的,需要在产品技术要求中明确。在产品技术要求中明确的报警指标,需要提供相应的检测方法。申请人在说明书给出了报警指标,但国家标准、行业标准未明确的,也无法在产品技术要求中明确的,可以提供研究资料证明产品满足这些报警指标的要求。
申请人应根据产品实际情况确认上述参数的适用性,不适用应在研究资料中说明不适用的理由。
性能指标中的单位符号,一般采用国际标准制单位。呼吸机常用的单位如下表所述。
表5推荐采用的呼吸机常用单位符号
|
单位名称 |
符号 |
|
气源压力 |
kPa |
|
气道压力 |
cmH2O或hPa |
|
潮气量 |
mL |
|
分钟通气量 |
L/min |
|
流量 |
L/min |
|
时间 |
s或ms |
|
体积百分比 |
vol.% |
|
分压 |
mmHg |
二、性能指标的制定
1.下表列出了呼吸机现行有效的标准中一些性能指标的要求,产品技术要求中的性能指标不能低于这些要求。
表6呼吸机国家标准和行业标准中性能指标的要求
|
性能指标名称 |
性能指标要求 |
来源 |
|
最大限制压力 |
不得超过125 cmH2O(125 hPa) |
GB 9706.212 |
|
气道压力测量精度 |
±(2 cmH2O(2 hPa)+实际读数的4%) |
GB 9706.212 |
|
吸入潮气量测量精度 |
50 mL以上:±(4 mL+实际读数的15%) |
GB 9706.212 |
|
呼出潮气量测量精度 |
50 mL以上:±(4 mL+实际读数的15%) |
GB 9706.212 |
|
氧浓度监测精度 |
±(2.5%的体积百分比+气体浓度的2.5%) |
GB 9706.255 |
|
二氧化碳浓度监测精度 |
±(0.43%的体积百分比+气体浓度的8%) |
GB 9706.255 |
|
流量监测精度 |
±[2+(设定值的8%)]L/min |
GB9706.290 |
|
最大限制压力 |
超过60hPa(60cmH2O)的时间不应超过200ms |
GB9706.290 |
|
最大限制压力 |
不得超过90 cmH2O(90 hPa) |
YY9706.272 |
|
通气频率控制精度 |
±1min-1或设定值的±10%,两者取大值。 |
YY0042 |
|
通气/间隙时间比控制精度 |
设定值的±15% |
YY0042 |
|
持续气道正压控制精度 |
±(0.1kPa+设定值的10%) |
YY0042 |
|
呼气末正压控制精度 |
±(0.1kPa+设定值的10%) |
YY0042 |
|
叹息 |
叹息时的潮气量应不小于非叹息时潮气量的1.5倍 |
YY0042 |
|
最大极限压力 |
不应超过12.5kPa |
YY0042 |
2.下表列出的性能指标涉及呼吸机的安全性和有效性,推荐产品符合这些要求。
表7性能指标的补充要求
|
性能指标名称 |
性能指标要求 |
|
呼吸频率控制精度 |
±1 bpm或±(设置值的10%),取大者 |
|
氧浓度控制精度 |
±3%的体积百分比或±设置值的10%,取大者 |
3.国家标准、行业标准中要求在产品说明书中声称的性能指标,应在产品技术要求中明确。
例如,GB 9706.212中201.7.9.2.9.101 b)条要求:“VBS中操作者可拆卸的部件的以下特征的额定范围,在此范围内,呼吸机可以保持设置和监测的通气量和压力的精度:吸气气路阻力;呼气气路阻力;和VBS的顺应性”,应在产品技术要求中明确呼吸系统的吸气、呼气阻力和顺应性要求。
又如,GB 9706.212中201.12.1.101要求:“至少应公开下述内容:
——与设定值相关的传输通气量的最大误差;
——与设定值相关的PEEP的最大误差;和
——与设定值相关的患者连接口的吸入氧浓度(FiO2)的最大误差”,应在产品技术要求中明确上述误差要求。
4.标准及主要安全特征
示例:
产品应符合GB 9706.1-2020、GB 9706.212-2020、GB 9706.255-2022、YY9706.108-2021,产品主要安全特征见附录A。
产品电磁兼容性能应符合YY 9706.102-2020、GB 9706.212-2020和GB 9706.255-2022的有关要求。
三、检验方法
若国家标准和行业标准中未规定测试条件,需规定相关的测试条件。测试选取的测量点应考虑到呼吸机参数可设置范围的最小值、最大值、中间若干常用值。
以下选择呼吸机典型的3个性能指标,提供相应的检验方法,供申请人参考。
【示例1】
性能指标
2.1.1潮气量控制精度
调节范围:成人100 mL~2000 mL,小儿20 mL~300 mL;
调节步长:成人为10 mL;小儿为1 mL;
误差:±(5 mL +设定值的10 %)。
2.2.1吸入潮气量监测精度
误差:
在0 mL~50mL范围内,±(10 mL + 3%实际读数);
在50 mL~4000 mL范围内,±(4 mL+实际读数的15%)。
2.2.2呼出潮气量监测精度
误差:
在0 mL~100 mL范围内,±(10 mL + 3%实际读数);
在100 mL~4000 mL范围内,±(3 mL + 10%实际读数)。
检验方法
按照GB9706.212的相应条款进行测试,应符合2.1.1、2.2.1、2.2.2。
【示例2】
性能指标
2.1.3吸气触发灵敏度控制精度
调节范围:0.5 L/min~15.0 L/min;
调节步长:0.1 L/min;
误差:±(0.4 L/min+设定值的10%)。
检验方法
测试方法:
样品的吸气触发灵敏度的设定值与标准设备测量并计算的值对比,结果应满足技术要求中2.1.3的规定。

测试图示:
测试步骤:
将呼吸测试设备连接至主动式模拟肺,调节主动式模拟肺用以模拟触发流量,用呼吸测试设备检查触发流量为0.5 L/min±0.45 L/min;
将呼吸测试设备连接至呼吸机病人连接端口,呼吸机设置为持续气道正压/压力支持通气模式,吸气触发灵敏度设置为0.5 L/min;
启动通气,检查呼吸机是否被正常触发;
依次将主动式模拟肺触发流量和吸气触发灵敏度设定为5 L/min、15 L/min,检查呼吸机是否被正常触发;
将呼吸测试设备的实测值与呼吸机的设定值比较,结果应符合2.1.3。
检查吸气触发灵敏度的调节范围和调节步长,应符合2.1.3。
【示例3】
性能指标
2.1.4呼吸系统顺应性
成人一次性呼吸系统(含吸气安全阀、成人一次性呼吸管路、积水杯、呼气阀)顺应性:≤4 mL/cmH2O;
成人重复性呼吸系统(含吸气安全阀、成人重复性呼吸管路、积水杯、呼气阀、Y形接头)顺应性:≤2 mL/cmH2O;
小儿一次性呼吸系统(含吸气安全阀、小儿一次性呼吸管路、积水杯、呼气阀)顺应性:≤2 mL/cmH2O;
小儿重复性呼吸系统(含吸气安全阀、小儿重复性呼吸管路、积水杯、呼气阀、Y形接头)顺应性:≤2 mL/cmH2O;
婴儿重复性呼吸系统含吸气安全阀、婴儿重复性呼吸管路、积水杯、呼气阀、Y形接头)顺应性:≤1 mL/cmH2O。

检验方法
测试步骤:
连接如图,将呼吸机每个排气口堵住;
用一个标准计量容器,将一定体积的气体注入呼吸机系统中;
观察并记录系统内的压力差;
用下列公式计算出系统顺应性,结果应符合2.1.4。
![]()
式中:
![]()
——顺应性,单位为毫升每厘米水柱(mL/cmH2O);
![]()
——用标准计量容器注入呼吸机系统中的体积,单位为毫升(mL);
![]()
——系统中压力的增加值,单位为厘米水柱(cmH2O)。
示例3给出了呼吸系统顺应性的检验方法,对于通过文字描述无法达到将步骤描述到具有可重现性和可操作性的程度,应借助图、表等形式来表达。通过计算的方法得到的测试结果,应清晰地表达出计算公式及直接测量参数的测量方法。
站点声明:
本网站所提供的信息仅供参考之用,并不代表本网赞同其观点,也不代表本网对其真实性负责。图片版权归原作者所有,如有侵权请联系我们,我们立刻删除。如有关于作品内容、版权或其它问题请于作品发表后的30日内与本站联系,本网将迅速给您回应并做相关处理。
北京飞速度医疗科技有限公司专注于医疗器械、诊断试剂产品政策与法规规事务服务,提供产品注册申报代理、临床合同(CRO)研究、产品研发、GMP质量辅导等方面的技术外包服务。